Aktuell Gesucht! KI-590 Wohnhaus mit 2 Wohneinheiten mit Pool oder in Seenähe, am liebsten in Bad Sauerbrunn oder Keltenberg...

Zur Anfrage

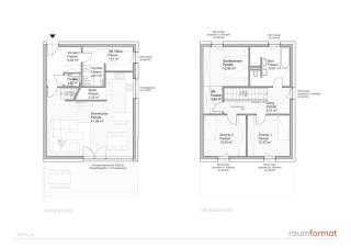
Energieeffiziente Doppelhaushälfte inkl. Photovoltaikanlage und Luftwärmepumpe – Haus links

Objekt Daten

Objektnummer
6291-3133
PLZ, Ort
2442, Unterwaltersdorf
Objekttyp
Haus
Wohnfläche
125.00 m²
Grundstücksfläche
277.00 m²
Kaufpreis
499.000 €
Provision
3% des Kaufpreises zzgl. 20% USt.
HWB-Wert
35.00 kWh/m²a
fGEE-Wert
0.60

Objekt Beschreibung

Ein durchdachter Hingucker: Ihre Freunde werden Sie beneiden! In rund 125 m² Wohnfläche können Sie sich ausbreiten und das moderne Wohngefühl und die lichtdurchfluteten Räume genießen. Lassen Sie sich durch die zahlreichen bereits gebauten Grundrisse inspirieren und passen Sie die Innenwände nach Ihren Wünschen und Bedürfnissen an. Der Blick in das Obergeschoss verrät, dass dieses ganz ohne Dachschrägen auskommt und dadurch in allen Räumen eine überdurchschnittliche Raumhöhe genutzt werden kann. Bei der Planung Ihres Niedrigenergiehauses achten wir, nicht nur auf die Energieeffizienz, um die Heizkosten gering zu halten, sondern auch darauf jeden Quadratmeter sinnvoll zu nutzen. Dadurch können wir unnötige Flächen und in weiterer Folge Baukosten verhindern und Ihnen im Alltag kurze Wege ermöglichen. Ihr Haus im Überblick! Grundstücksgröße: ca. 277 m² | Wohnfläche: ca. 125 m² Erdgeschoss: großes Wohn- und Esszimmer mit offener Küche, Speis, Büro, Technikraum, WC, Vorraum Obergeschoss: Schlafzimmer, zwei Kinderzimmer, Badezimmer inkl. WC Heizung: Fußbodenheizung über Luftwärmepumpe | HWB: 35 kwh/m²a | fGEE: 0,60 Der Garten und die Terrasse bieten viel Platz für Spiel und Spaß. Entspannen Sie, lassen Sie die Seele baumeln und genießen Sie Ihr Paradies. Praktischerweise ist der Außenbereich von der Straße aus zugängig, wodurch Gartengeräte nicht durch das Wohnzimmer geschleppt werden müssen. Der Einkauf hingegen ist dank der Parkplätze neben dem Eingang im Handumdrehen hineingetragen. Das ist drinnen: Damit können Sie rechnen! Hier ein kleiner Einblick, alles weitere finden Sie in unserem Exposé beziehungsweise kann unser Projektleiter beantworten! * Profitieren Sie dank der Qualitätsprodukte aus Österreich von einer hohen Produktqualität und einer hohen Lebensdauer! * Bramac Markendach * Josko Fenster 3-fach Verglasung (inkl. Spaltlüftung) * Wienerberger Qualitätsziegel * Ökologischer Baustoff * Baumit Qualitätsfassadendämmung * Viessmann Luftwärmepumpe * Alles in Massivbauweise! Ein Haus für Generationen! Sie profitieren, von einem hohen Werterhalt, ausgeglichenen Raumklima und einer hohen Energieeffizienz. * Doppelwandbauweise zum Nachbarn! REGIOWERT Doppelhäuser werden, wie zwei eigenständige Gebäude errichtet. Sie genießen dadurch einen erhöhten Schallschutz. * Großzügige Elektroausstattung! Ade lästige Suche nach Steckdosen und tapsen im Dunkeln! In Ihrem Haus sind die Lichtschalter und Steckdosen alle am richtigen Platz. * Praktische Leerverrohrungen für die Zukunft! Wir haben in die Zukunft gedacht! Es werden zahlreiche Leerverrohrungen zur nachträglichen Installation in Ihrem Haus eingebaut. Zögern Sie nicht! Verschaffen Sie sich mit dem Exposé einen ersten Eindruck Ihres neuen Hauses und vereinbaren Sie anschließend ein unverbindliches Beratungsgespräch. Bereits über 30 Familien haben sich für unsere Häuser entschieden - werden Sie auch Teil der REGIOWERT Familie. KAUFPREIS: EUR 499.000,00 belagsfertig inklusive aller Anschlusskosten Wir weisen darauf hin, dass zwischen dem Vermittler und dem zu vermittelnden Dritten ein familiäres oder wirtschaftliches Naheverhältnis besteht. Der Vermittler ist als Doppelmakler tätig.

Umgebung – Points of Interest

Verkehr

Bus
250 m
Gruppe: Verkehr
Bahnhof
500 m
Gruppe: Verkehr
Autobahnanschluss
4.750 m
Gruppe: Verkehr

Kinder & Schule

Kindergarten
1.000 m
Gruppe: Kinder & Schule
Schule
1.250 m
Gruppe: Kinder & Schule

Sonstiges

Bank
2.750 m
Gruppe: Sonstiges
Geldautomat
2.750 m
Gruppe: Sonstiges
Post
750 m
Gruppe: Sonstiges
Polizei
2.250 m
Gruppe: Sonstiges

Nahversorgung

Supermarkt
1.000 m
Gruppe: Nahversorgung
Bäckerei
3.000 m
Gruppe: Nahversorgung

Gesundheit

Arzt
750 m
Gruppe: Gesundheit
Apotheke
750 m
Gruppe: Gesundheit
Klinik
8.500 m
Gruppe: Gesundheit

Interesse an diesem Objekt?

Kontaktieren Sie uns gerne, senden Sie uns Ihre Anfrage zu diesem Objekt